21
$855,000 Sale
Listed 12 hours ago
33295 Century Court
· 4
· 2
· 1
· 1565
Key Facts
Key facts for 33295 Century Court
Property Type
House, Split Entry
Parking
1 garage, 2 parking
MLS #
R3060383
Size
1565 sqft
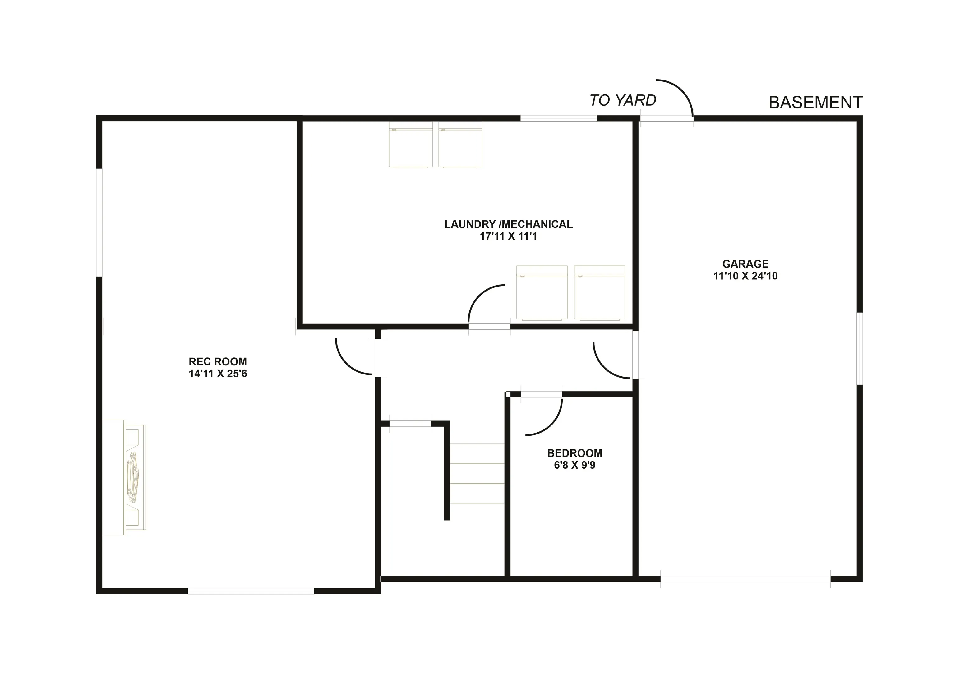
Basement
Partially Finished
Listed on
-
Lot size
7056.00 sqft
Tax
$4,580.66 /yr
Days on Market
-
Year Built
1979
Maintenance Fee
-
Description
Way below assessed value! This solid 4 bedroom, 2 bathroom home offers 1,996 sq ft of potential in one of Central Abbotsford’s most desirable family neighbourhoods. Located in the quiet and friendly Babich area, this well-built original home sits in a peaceful cul-de-sac on a large, flat 7,000 sq ft... lot—perfect for gardening, kids, pets, or storing your toys. Just a short walk to great schools, parks, and trails, this area feels like a private oasis yet is minutes from all Central Abbotsford amenities, shopping, and commuter routes. A great layout with tons of natural light and room for your renovation ideas. Bring your vision and make this your next family home. Easy to show—call today!
Similar Properties (No results)
Room Types
Kitchen
-
Dimensions 11'4 x 10'0
113.33 sqft
Dining Room
-
Dimensions 11'8 x 8'10
103.06 sqft
Living Room
-
Dimensions 15'1 x 15'3
230.02 sqft
Courtesy of: RE/MAX Magnolia