36
$629,000 Sale
Listed 1 hour
410 2242 Whatcom Road
· 2
· 2
· 2
· 1124
Key Facts
Key facts for 410 2242 Whatcom Road
Property Type
Condo, Penthouse
Parking
2 parking
MLS #
R3053329
Size
1124 sqft
Basement
None
Listed on
-
Lot size
-
Tax
$2,778.40 /yr
Days on Market
-
Year Built
2016
Maintenance Fee
$655.22 /mo
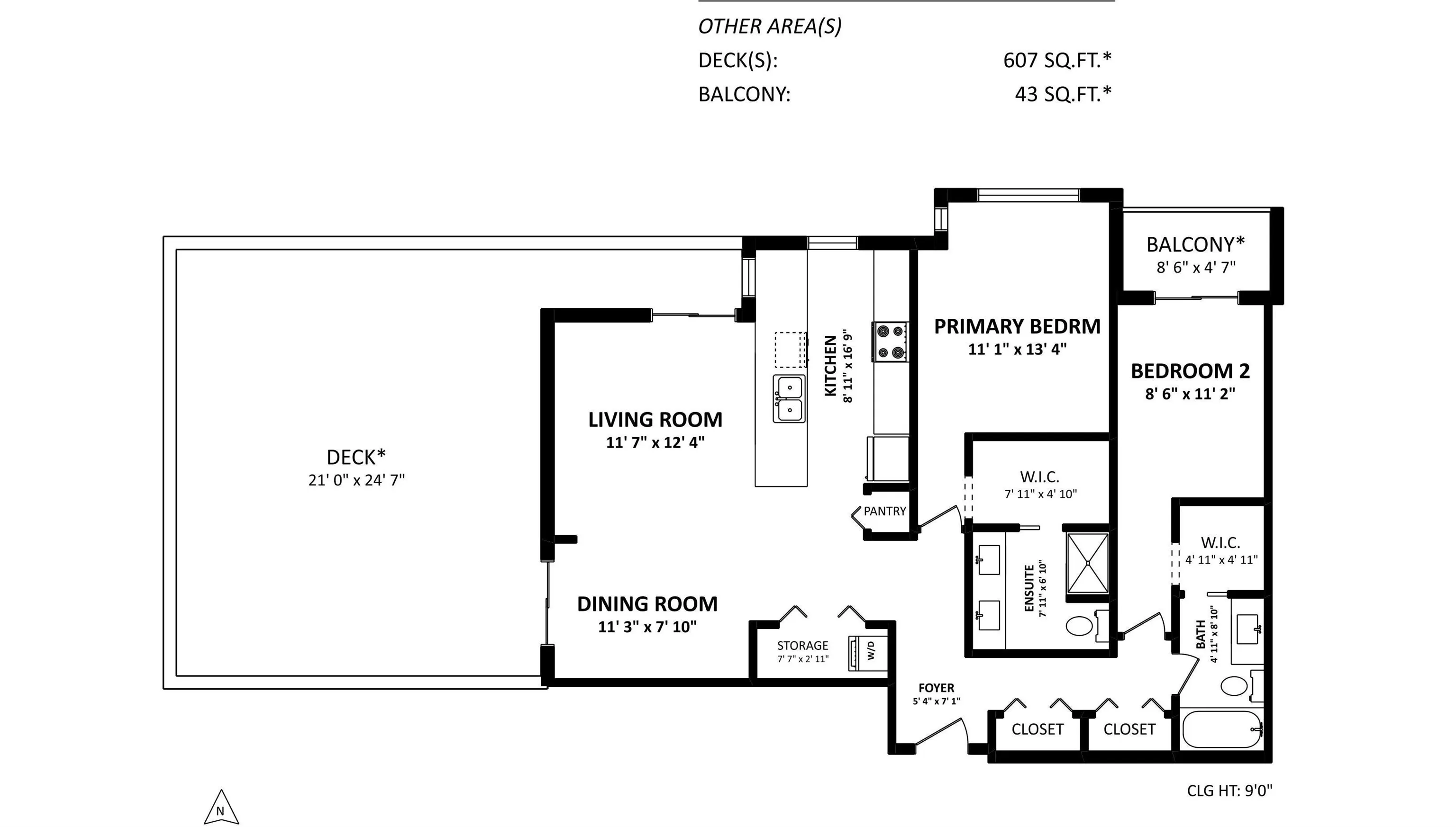
Description
Exquisite CORNER PENTHOUSE at The WATERLEAF with an IMPRESSIVE over 600sqft Private ROOF TOP TERRACE which is one of a kind! This Truly Unique 2 Bed/ 2 Bath Air Conditioned Home is still Like New! Adorned with extra windows-offering Open & Bright living spaces. Deluxe Modern Kitchen with granite is...land/eating bar, open to a luxurious living room & spacious dining area. Both the Master and 2nd Bedroom have an Ensuite Bath. The 2nd Bedroom features it's own private balcony. But the ROOF TOP Terrace is Truly Incredible! Huge amount of Extra living space with beautiful Mountain & Valley views plus your own PRIVATE HOT TUB to soak it all in! The Complex has it all, with it's own Gym, Clubhouse, Pool & Whirlpool. This one really is a Must see! OPEN HOUSE Oct 4/5 Sat/Sun 1-3PM
Similar Properties (No results)
Room Types
Primary Bedroom
-
Dimensions 13'4 x 11'1
147.78 sqft
Bedroom
-
Dimensions 11'2 x 8'6
94.92 sqft
Living Room
-
Dimensions 12'4 x 11'7
142.86 sqft
Courtesy of: Royal LePage Little Oak Realty